Ви можете зв'язатися з нами за будь-яких питань через кол-центр

Житло для Біженців з Двома Кімнатами

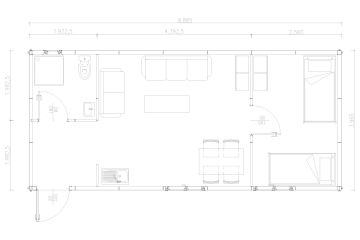
  • Спальня 9.145 m²
  • Ванна кімната 3,376 m²
  • Living Room 16.311 m²
  • Зал 3.339 m²
  • Lenght 8.885 m
  • ширина 3.965 m
  • Висота 2.500 m
  • M2 35 m²
Зараз 55 переглядають цей продукт
Call us

Доступне та Високоякісне: Рішення від Кармод – Двокімнатний Будинок для Сімей Біженців

Кармод пропонує доступне та високоякісне рішення зі своїм Двокімнатним Будинком для Сімей Біженців площею 35 м² для задоволення нагальних потреб у проживанні. Цей економічний варіант проживання розроблено, щоб задовольнити швидко зростаючі потреби сімей біженців та людей, що потребують тимчасового притулку. Модель Кармод забезпечує вартісну ефективність без компромісів з якістю, пропонуючи довговічний та міцний житловий простір. Обладнаний високоізольованими характеристиками, цей префабрикований будинок забезпечує максимальну енергоефективність та комфорт протягом усіх пор року.

Швидке Виробництво та Монтаж: Ефективне Рішення від Кармод для Негайного Розміщення

Двокімнатний Будинок для Сімей Біженців від Кармод забезпечує негайне рішення для невідкладних потреб у проживанні завдяки швидким процесам виробництва та монтажу. Модульна конструкція площею 35 м² може бути швидко підготовлена до використання та легко змонтована, що робить Кармод обраним брендом у часи криз. Відомий як надійна компанія з референціями у 135 країнах, Кармод створює глобальну мережу довіри та задоволення. Швидкість виробництва та монтажу є цінним перевагою для організацій та осіб, що вибирають рішення Кармод для біженців та тимчасового розміщення.

Комфортне Життя та Надійний Бренд: Будинки для Біженців від Кармод

Кармод із своїм Двокімнатним Будинком для Сімей Біженців не лише пропонує швидке та економічне рішення для проживання, але й забезпечує комфортабельний та безпечний житловий простір. Цей префабрикований будинок площею 35 м² розроблено, враховуючи потреби в приватності та комфорті сімей біженців та осіб, що потребують тим

Найбільше переглянуті