Вы можете связаться с нами через колл-центр по любым вопросам.

Жильё для беженцев с двумя спальнями

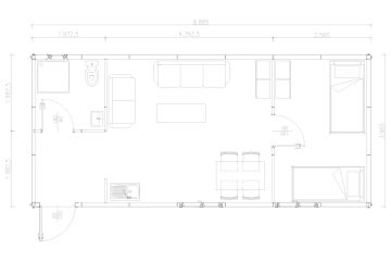
  • Спальня 9.145 m²
  • Ванная комната 3,376 m²
  • Living Room 16.311 m²
  • Зал 3.339 m²
  • Lenght 8.885 m
  • ширина 3.965 m
  • Высота 2.500 m
  • M2 35 m²
В настоящее время 41 гости просматривают этот продукт
Позвоните нам

Доступные Решения для Проживания: Дом для Семей Беженцев 35 м² от Кармод

Кармод предлагает экономичные и комфортные жилые пространства с Домом для Семей Беженцев площадью 35 м², специально разработанным для нужд беженцев и чрезвычайного проживания. Этот префабрикованный дом с двумя комнатами и двумя кроватями идеально подходит для семей, предлагая доступное решение для проживания, а также стремясь обеспечить комфортабельную жизнь без ущерба для качества. Используя материалы с высокой изоляцией, Кармод снижает энергетические расходы, создавая устойчивое жилое пространство. Эта модель выделяется своей экономичной ценой, предлагая быстрое и эффективное решение для кризисов с беженцами.

Высокая Изоляция и Комфорт: Дом для Семей Беженцев от Кармод

Дом для Семей Беженцев площадью 35 м² от Кармод предлагает комфортабельное жилое пространство на все времена года благодаря своим высоким изоляционным характеристикам. Этот префабрикованный дом с двумя комнатами оснащен изоляционными материалами, максимизирующими энергетическую эффективность, что обеспечивает прохладу летом и тепло зимой. Дизайн, уделяющий особое внимание комфорту и конфиденциальности семей, идеален для длительного проживания. Кармод, используя качественные материалы и превосходное мастерство, предлагает долговечные и комфортные решения для потребностей в беженцах и временном проживании.

Быстрое Производство и Монтаж: Надежное Решение от Кармод

Кармод укрепляет свое лидерство в отрасли в области быстрого производства и монтажа с Домом для Семей Беженцев площадью 35 м². Эти префабрикованные дома разработаны для быстрого реагирования на потребности в чрезвычайном проживании, могут быть произведены и смонтированы в короткие сроки. Инновационные технологии производства и опытные монтажные бригады Кармод позволяют реализовать ваши проекты быстрее запланированного срока. С референциями в 135 странах, Кармод является предпочтительным и доверенным брендом по всему миру. Эта модель идеально подходит для организаций, ищущих решения для быстрого развертывания и экономичного проживания беженцев и чрезвычайных ситуаций.

Наиболее просматриваемые