يمكنك الوصول إلينا من مكاتب المبيعات لدينا ومركز الاتصال لجميع طلباتك.

منزل للاجئين بغرفتين

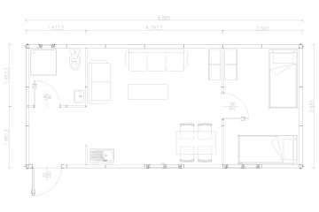
  • غرفة النوم 9.145 m²
  • الحمام 3,376 m²
  • Living Room 16.311 m²
  • القاعة 3.339 m²
  • Lenght 8.885 m
  • العرض 3.965 m
  • ارتفاع 2.500 m
  • M2 35 m²
حاليًا 71 يشاهد الضيوف هذا المنتج
اتصل بنا

بأسعار معقولة وجودة عالية: حل كارمود لمنزل عائلة لاجئة مكون من غرفتين

تقدم كارمود حلاً عالي الجودة وبأسعار معقولة لاحتياجات الإقامة العاجلة من خلال منزل عائلة اللاجئين المكون من غرفتين والذي تبلغ مساحته 35 مترًا مربعًا. تم تصميم خيار الإقامة بأسعار معقولة لتلبية الاحتياجات المتزايدة بسرعة لعائلات اللاجئين والأشخاص الذين يحتاجون إلى إقامة مؤقتة. يوفر هذا الطراز من كارمود مساحة معيشة متينة وطويلة الأمد من خلال توفير التكلفة الفعالة دون التضحية بالجودة. تم تجهيز هذا المنزل الجاهز بميزات عزل عالية، مما يزيد من كفاءة الطاقة ويوفر حياة مريحة في جميع الفصول.

الإنتاج والتجميع السريع: تسوية فورية مع حل كارمود الفعال

يوفر منزل عائلة اللاجئين المكون من غرفتين في كارمود حلاً فوريًا لاحتياجات السكن العاجلة بفضل عمليات الإنتاج والتجميع السريعة. يمكن تجهيز هذا الهيكل المعياري الذي تبلغ مساحته 35 مترًا مربعًا في وقت قصير وتجميعه بسهولة، مما يجعل كارمود علامة تجارية مفضلة في أوقات الأزمات. لقد أنشأت كارمود، المعروفة كشركة موثوقة، شبكة عالمية من الثقة والرضا مع مراجع في 135 دولة. تعد القدرة على الإنتاج والتجميع السريع ميزة قيمة للمؤسسات والأفراد الذين يفضلون حلول كارمود للاجئين والسكن المؤقت.

حياة مريحة وعلامة تجارية موثوقة: بيوت اللاجئين في كارمود

من خلال منزل عائلة اللاجئين المكون من غرفتين، لا توفر كارمود حلاً سريعًا واقتصاديًا للسكن فحسب، بل توفر أيضًا مساحة معيشة مريحة وآمنة. تم تصميم هذا المنزل الجاهز الذي تبلغ مساحته 35 مترًا مربعًا مع الأخذ في الاعتبار الخصوصية والراحة التي تحتاجها عائلات اللاجئين والأشخاص الذين يحتاجون إلى مأوى مؤقت. تهدف كارمود إلى أن تقدم لمستخدميها مساحة معيشة صحية وهادئة بمواد عالية الجودة وأسلوب تصميم حديث. نظرًا لكونها العلامة التجارية الأكثر تفضيلاً، فإن منازل كارمود للاجئين هي حل إيواء يثق به الناس في جميع أنحاء العالم.

الأكثر مشاهدة