Ви можете зв'язатися з нами за будь-яких питань через кол-центр

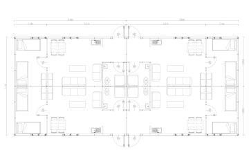
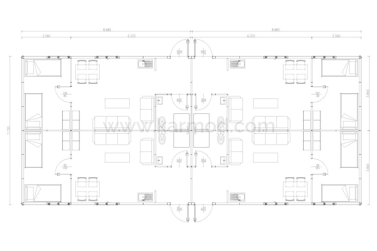
Чотирикімнатний Будинок для Біженців

  • Спальня 9.145 m² (x4)
  • Ванна кімната 3,376 m² (x4)
  • Living Room 16.311 m² (x4)
  • Зал 3.339 m² (x4)
  • Lenght 17.670 m
  • ширина 7.730 m
  • Висота 2.500 m
  • M2 137 m²
Зараз 52 переглядають цей продукт
Call us

Доступне та Високоякісне: Чотирикімнатне Розміщення Біженців від Кармод

Кармод пропонує доступне та високоякісне рішення для розміщення біженців та надзвичайних ситуацій із своїм Чотирикімнатним Префабрикованим Житлом для Біженців площею 137 м². Ці просторі та функціональні префабриковані будинки забезпечують швидке та безпечне місце для життя, зосереджуючись на ефективності витрат. Оснащені високою ізоляцією та енергоефективністю, ці конструкції пропонують комфортне життя в будь-який сезон. Кармод із цією чотирикімнатною житловою одиницею, ідеальною для урядів, допоміжних організацій та осіб, які шукають економічні рішення, пропонує якість та доступність разом.

Швидке Встановлення, Довготривалий Комфорт: Чотирикімнатні Будинки для Біженців від Кармод

Чотирикімнатне Префабриковане Житло для Біженців від Кармод на площі 137 м² пропонує швидкий і практичний процес монтажу. Ці модульні конструкції виділяються своєю здатністю до швидкого встановлення, що є критично важливим для задоволення нагальних потреб у розміщенні. Відомий як надійна компанія з референціями у 135 країнах, Кармод створює глобальну мережу задоволення та довіри. Чотирикімнатні будинки для біженців від Кармод є надійним та комфортним вибором для всіх, хто шукає рішення для тривалого та тимчасового розміщення, ідеальні для ситуацій, що вимагають швидкого реагування.

Гарантія Кармод для Чотирикімнатного Розміщення Біженців: Глобальний Партнер у Рішеннях

Кармод із своїм Чотирикімнатним Префабрикованим Житлом для Біженців виступає як глобальний партнер у рішеннях, обраний у всьому світі. Префабриковані будинки площею 137 м² розроблені з урахуванням потреб та очікувань сімей біженців та осіб, що потребують невідкладного притулку. Кармод прагне надати своїм користувачам здорове та спокійне місце для життя, використовуючи високоякісні матеріали та сучасний підхід до дизайну. З референціями у 135 країнах, Кармод є лідером у галузі за якістю, швидкістю та задоволенням клієнтів, будучи надійним вибором для урядів, допоміжних організацій та осіб, які шукають рішення для біженців та невідкладного розміщення на міжнародному рівні.

Найбільше переглянуті