Ви можете зв'язатися з нами за будь-яких питань через кол-центр

Туалет і душ з пральнею

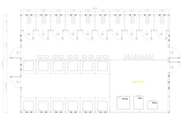
  • Ємність 10 + 12
  • Lenght 12.650 m
  • ширина 8.357,5 m
  • Висота 2.500 m
  • M2 106 m²
Зараз 77 переглядають цей продукт
Call us

Доступне Рішення: Модульний WC-Душ із Пральнею

Модульний WC-Душ із Пральнею від Кармод, з площею 106 м², є ідеальним рішенням, особливо для густонаселених місць проживання, робочих місць та освітніх кампусів. З інтегрованою пральнею, ця одиниця не лише забезпечує чистоту та гігієну, але й пропонує практичне житлове простір. Це доступне модульне рішення, поєднане з високоякісними матеріалами та технологією ізоляції від Кармод, надає користувачам економічно ефективне, продуктивне та комфортне середовище.

Швидкий Монтаж: Економія Часу та Грошей

Монтаж Модульного WC-Душу із Пральнею від Кармод вражає своєю швидкістю та легкістю. Це широке рішення площею 106 м² може бути швидко встановлене на місці завдяки інноваційному дизайну від Кармод та стати готовим до використання. Цей процес швидкого монтажу значно економить час і кошти на проектах. Надійна компанія Кармод гарантує якість та швидкість на всіх етапах, від виробництва до монтажу, що робить її однією з найбільш вибраних марок у галузі.

Комфортабельні та Гігієнічні Житлові Простори

Модульний WC-Душ із Пральнею від Кармод пріоритетно ставить комфорт та гігієнічні потреби користувачів. Цей компактний дизайн площею 106 м² легко адаптується до будь-якого використовуваного простору та забезпечує тривалу чистоту. З інтегрованою пральнею, ця модульна одиниця створює значні зручності для користувачів, ще раз доводячи якість та надійність Кармод. З референціями в 135 країнах, Кармод визнаний та надійний бренд у всьому світі.

Найбільше переглянуті