Ви можете зв'язатися з нами за будь-яких питань через кол-центр

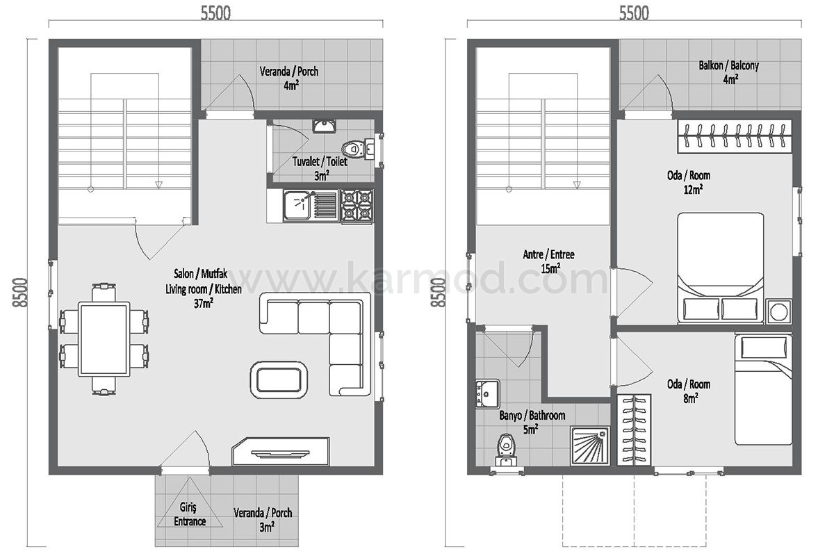
Сталевий дуплекс 92 м²

  • Салон 37 m²
  • Туалет 3 m²
  • Внутрішній дворик 4 m²
  • Entry 3 m²
  • Спальня 12 m²
  • Спальня 8 m²
  • Вхід 15 m²
  • Ванна кімната 5 m²
  • Балкон 4 m²
Зараз 48 переглядають цей продукт
Call us
Найбільше переглянуті