Ви можете зв'язатися з нами за будь-яких питань через кол-центр

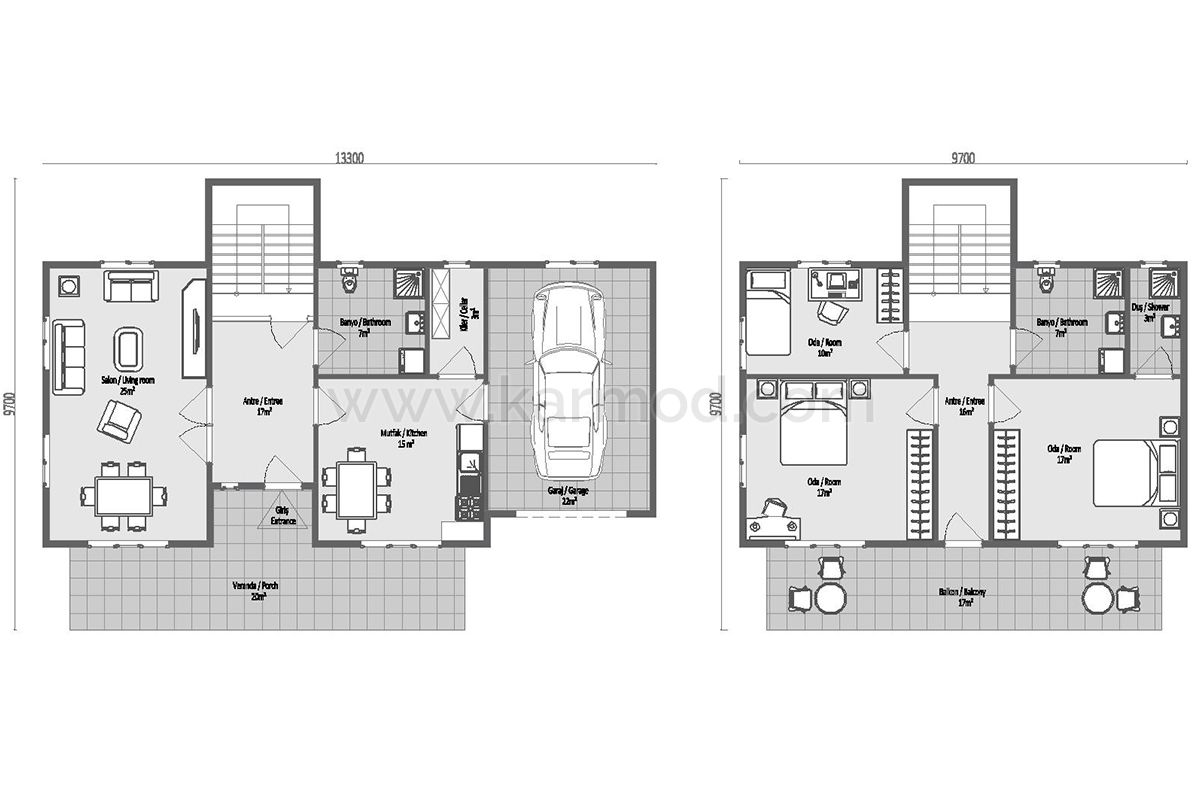
Сталевий дуплекс 200 м²

  • Saloon + Entrance 42 m²
  • Внутрішній дворик 20 m²
  • Кухня 15 m²
  • Ванна кімната 7 m²
  • Cellar 3 m²
  • Гараж. 22m²
  • Туалет + ванна кімната 10 m²
  • Спальня + внутрішній дворик 26 m²
  • Спальня 17 m²
  • Спальня 17 m²
  • Балкон 17 m²
Зараз 96 переглядають цей продукт
Call us
Найбільше переглянуті