Ви можете зв'язатися з нами за будь-яких питань через кол-центр

Двокімнатний Будинок для Біженців

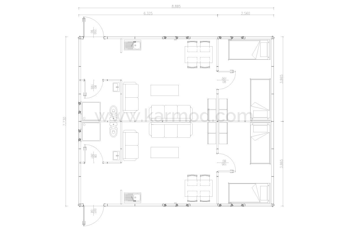
  • Спальня 9.145 m² (x2)
  • Ванна кімната 3,376 m² (x2)
  • Living Room 16.311 m² (x2)
  • Зал 3.339 m² (x2)
  • Lenght 8.885 m
  • ширина 7.730 m
  • Висота 2.500 m
  • M2 69 m²
Зараз 48 переглядають цей продукт
Call us

Доступне та Високоякісне: Рішення для Подвійного Розміщення Біженців від Кармод

Кармод пропонує доступне та високоякісне рішення для розміщення біженців та невідкладних ситуацій зі своїм Подвійним Сімейним Префабрикованим Житлом площею 69 м². Ці інноваційні префабриковані будинки забезпечують швидке та безпечне місце для життя, акцентуючи на вартісній ефективності. Модель Кармод оснащена високою ізоляцією та енергоефективністю, забезпечуючи комфортне життя в будь-який сезон. Цей подвійний житловий блок, ідеальний для урядів, допоміжних організацій та осіб, що шукають економічні рішення, виділяється якістю Кармод.

Швидке Встановлення, Довготривалий Комфорт: Подвійні Будинки для Біженців від Кармод

Подвійне Сімейне Префабриковане Житло для Біженців від Кармод площею 69 м² пропонує швидкий і практичний процес монтажу. Ці модульні конструкції вирізняються швидкістю встановлення, що має критичне значення для задоволення невідкладних потреб у розміщенні. Кармод забезпечує швидке втілення проектів завдяки інноваційним технологіям виробництва та досвідченим монтажним командам. Відомий як надійна компанія з референціями у 135 країнах, Кармод створює глобальну мережу задоволення та довіри. Подвійні будинки для біженців від Кармод є надійним та комфортним вибором для всіх, хто шукає рішення для довготривалого та тимчасового розміщення.

Надійне Подвійне Розміщення Біженців з Гарантією Кармод: Бренд, Що Обирають у Світі

Кармод зі своїм Подвійним Сімейним Префабрикованим Житлом для Біженців бере на себе відповідальність бути брендом, який обирають на світовому рівні. Ці префабриковані будинки площею 69 м² розроблені з урахуванням потреб та очікувань користувачів, використовуючи високоякісні матеріали та сучасний дизайн для забезпечення здорового та спокійного житлового простору. Кармод є надійним партнером для урядів, допоміжних організацій та осіб, які шукають рішення для невідкладного розміщення. З референціями у 135 країнах, Кармод є лідером у галузі за якістю, швидкістю та задоволенням клієнтів.

Найбільше переглянуті