Ви можете зв'язатися з нами за будь-яких питань через кол-центр

Контейнер для інженерного гуртожитку на 4 особи

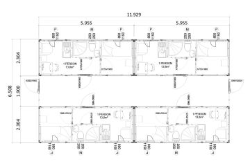
  • Довжина 11.9 m
  • ширина 6.5 m
  • Висота 2.6 m
  • M2 77 m²
  • Ємність 4
Зараз 43 переглядають цей продукт
Call us

77 м² Інженерний Гуртожиток: Доступний Комфорт і Функціональність

Кармод об'єднує комфорт та функціональність у 77 м² Інженерний Гуртожиток, спеціально розроблений для інженерів та офісних працівників. Цей гуртожиток на 4 особи пропонує доступний за ціною, бюджетний варіант, забезпечуючи комфортне життя протягом усіх чотирьох сезонів завдяки високим ізоляційним характеристикам. Це рішення для гуртожитку від Кармод вирізняється оптимальним простором для користувача, сучасним дизайном та якісною роботою, демонструючи ідеальне поєднання доступної ціни та високого комфорту, що підтверджує статус Кармод як одного з найкращих виробників у галузі.

Готовий до Використання з Швидким Монтажем: 77 м² Інженерний Гуртожиток

77 м² Інженерний Гуртожиток від Кармод привертає увагу перевагою швидкого монтажу. Навіть у проєктах з обмеженим часом, досвідчена монтажна команда Кармод швидко здійснює встановлення гуртожитків, запобігаючи будь-яким затримкам у вашій роботі. Ця особливість швидкого монтажу робить Кармод найбільш вибраним брендом у галузі за "швидке виробництво та монтаж". Надійна компанія Кармод, відома у 135 країнах, є глобальним лідером і віддана задоволенню потреб клієнтів на вищому рівні.

Інженерний Гуртожиток 77 м², Розроблений з Якістю Кармод

Кармод ставить на перше місце якість і задоволення користувача у своєму 77 м² Інженерному Гуртожитку. Використання високоякісних матеріалів і вищої майстерності робить це рішення для гуртожитку на 4 особи довговічним та міцним. Високі ізоляційні характеристики сприяють економії енергії та створенню комфортабельного житлового простору. Кармод відомий у галузі як "високоякісна та надійна компанія". З 135 країнами-референсами, Кармод реалізував багато успішних проєктів по всьому світу, пропонуючи ідеальний гуртожиток для інженерів та офісних працівників за доступними цінами.

Найбільше переглянуті