Ви можете зв'язатися з нами за будь-яких питань через кол-центр

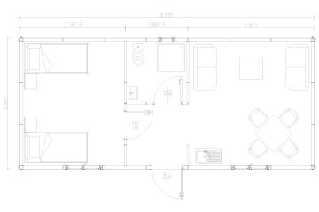
Будинок для біженців з 2 кімнатами

  • Спальня 11,511 m²
  • Ванна кімната 3,376 m²
  • Living Room 13,864 m²
  • Зал 3,376 m²
  • Lenght 8.885 m
  • ширина 3.965 m
  • Висота 2.500 m
  • M2 35 m²
Зараз 68 переглядають цей продукт
Call us

Доступні Рішення для Проживання: Сімейний Будинок для Біженців Площею 35 м²

Кармод пропонує економічні та комфортабельні житлові простори зі своїм Сімейним Будинком для Біженців площею 35 м², спеціально розробленим для потреб біженців та невідкладного розміщення. Цей префабрикований будинок із двома кімнатами та двома ліжками ідеально підходить для сімей, пропонуючи не лише доступне рішення для проживання, але й комфортне життя без компромісів з якістю. Використовуючи високоізольовані матеріали, Кармод знижує енергетичні витрати, створюючи стійкий житловий простір. Зі своєю економічною ціною, ця модель пропонує швидке та ефективне рішення для кризи біженців.

Високоізольований та Комфортабельний: Сімейний Будинок для Біженців від Кармод

Сімейний Будинок для Біженців від Кармод площею 35 м² пропонує комфортабельний житловий простір завдяки своїм високоізольованим характеристикам у будь-яку пору року. Цей двокімнатний префабрикований будинок оснащений ізоляційними матеріалами, які забезпечують ефективність енерговикористання, зберігаючи прохолоду влітку та тепло взимку. Зосереджуючись на комфорті та приватності сімей, цей дизайн ідеально підходить для тривалого проживання. Кармод використовує якісні матеріали та вишукану майстерність, надаючи стійкі та комфортабельні рішення для потреб біженців та тимчасового розміщення.

Швидке Виробництво та Монтаж: Надійне Рішення від Кармод

Кармод зміцнює своє лідерство у сфері швидкого виробництва та монтажу зі Сімейним Будинком для Біженців площею 35 м², розробленим для швидкого реагування на потреби у невідкладному розміщенні. Ці префабриковані будинки можуть бути швидко виготовлені та встановлені, щоб задовольнити нагальні потреби у проживанні. Інноваційні технології виробництва та досвідчені монтажні команди Кармод дозволяють реалізувати ваші проєкти значно швидше за запланований термін. З референціями у 135 країнах світу, Кармод є визнаним та надійним брендом, який пропонує лідерські швидкі та якісні префабриковані рішення в сфері охорони здоров'я. Ця модель ідеально підходить для організацій, які шукають швидке встановлення та коштовну ефективність у вирішенні проблем біженців та невідкладного розміщення.

Найбільше переглянуті