Ви можете зв'язатися з нами за будь-яких питань через кол-центр

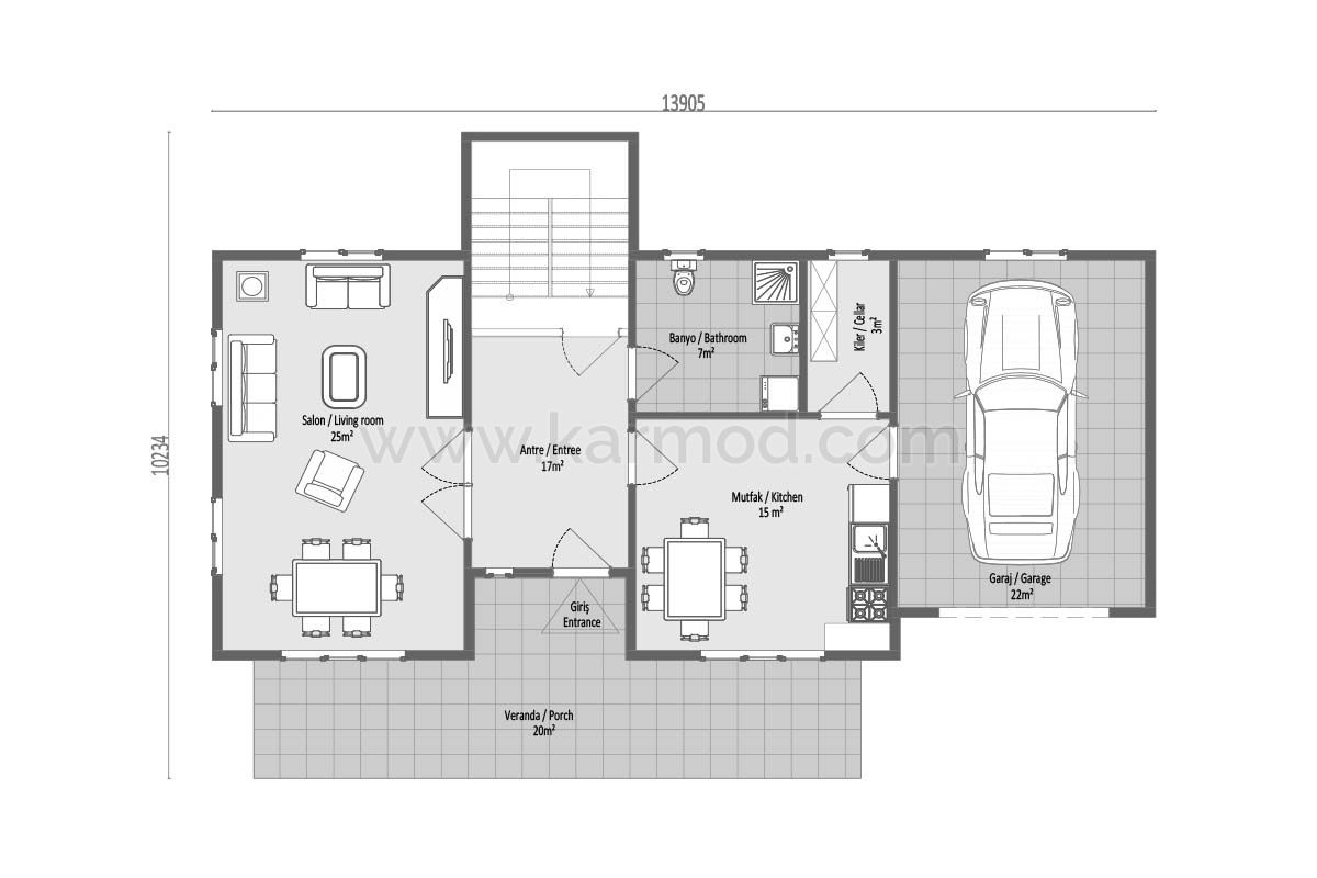
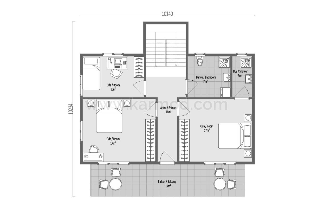
Дачні будинки 196 м²

  • Салон 25 m²
  • Вхід 17 m²
  • Внутрішній дворик 20 m²
  • Кухня 15 m²
  • Ванна кімната 7 m²
  • Кухня 3 m²
  • Гараж. 22 m²
  • Ванна кімната 7 m²
  • Ванна кімната 3 m²
  • Спальня 10 m²
  • Вхід 16 m²
  • Спальня 17 m²
  • Спальня 17 m²
  • Балкон 17 m²
Зараз 32 переглядають цей продукт
Call us

Питання що часто задаються

Найбільше переглянуті