Вы можете связаться с нами через колл-центр по любым вопросам.

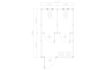
Туалет с 2 емкостями

  • Емкость 2
  • Lenght 2.610 m
  • ширина 3.965 m
  • Высота 2.500 m
  • M2 10 m²
В настоящее время 51 гости просматривают этот продукт
Позвоните нам

Доступные решения для гигиены: Модульные туалеты от Кармод

Кармод предлагает доступные и удобные решения для гигиены с 10 м² модульным туалетом с двумя кабинками для мероприятий, строительных площадок или общественных мест. Эти модульные туалеты привлекают внимание своей легкостью монтажа и мобильностью, отвечая всем потребностям наружного использования. Благодаря высокоизолированной конструкции, эти префабрикованные туалеты подходят для использования в любое время года и предоставляют пользователям комфорт и чистоту. Кармод с качественными и экономичными решениями повышает стандарты гигиены везде, где это необходимо.

Быстрая установка и долговечность: Преимущества двухместного туалета от Кармод

Двухместный префабрикованный туалет от Кармод с процессами быстрого производства и монтажа предлагает практичные решения для срочных потребностей в гигиене. Эти 10 м² модульные туалеты могут быть легко установлены и сразу же готовы к использованию. Как надежная компания, Кармод с референциями из 135 стран занимает лидирующие позиции на глобальном рынке. Эти префабрикованные туалеты выделяются своей долговечностью и долгосрочным использованием, устраняя необходимость в частой замене или обслуживании.

Удобные и чистые модульные туалеты: Качество от Кармод

Двухместный префабрикованный туалет от Кармод площадью 10 м² с высококачественными материалами идеально подходит для мероприятий, строительных площадок и общественных мест, предлагая удобные и чистые решения для туалетов. Эти модульные туалеты разработаны с особым вниманием к потребностям пользователей, предлагая легкость в уборке и обслуживании. Будучи наиболее предпочтительным брендом, Кармод выделяется своими высокими стандартами и надежностью в решениях для модульных туалетов. Этот продукт обеспечивает пользователям гигиенический, безопасный и комфортный опыт использования, качественно удовлетворяя гигиенические потребности ваших проектов.

Наиболее просматриваемые