Вы можете связаться с нами через колл-центр по любым вопросам.
Лучшие продавцы

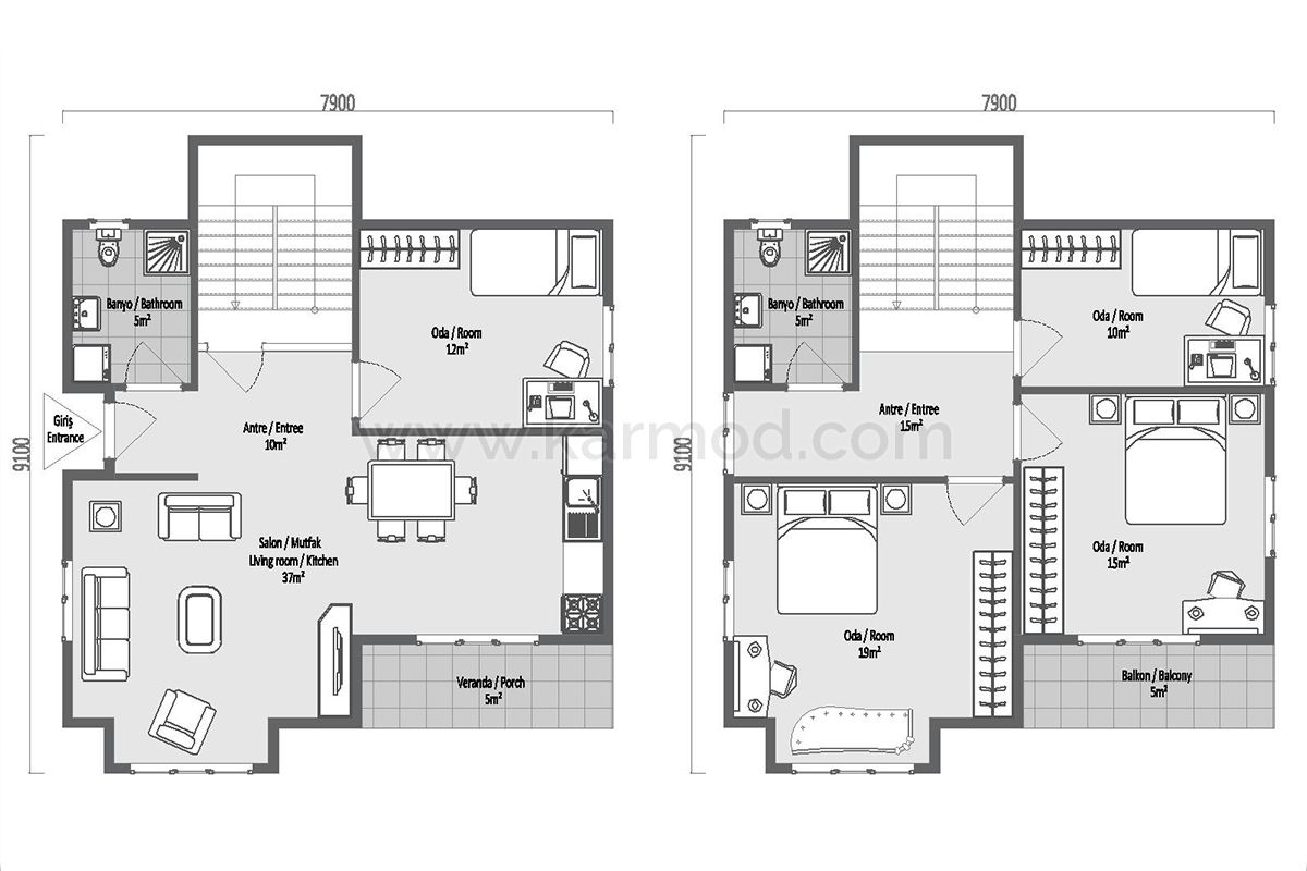
Сборный дом Дуплекс 140 м²

  • Вход 10 m²
  • салон 37 m²
  • Спальня 12 m²
  • Ванная комната + ванная комната 10 m²
  • Патио 5 m²
  • Вход 15 m²
  • Спальня 19 m²
  • Спальня 10 m²
  • Спальня 15 m²
  • Балкон 5 m²
В настоящее время 68 гости просматривают этот продукт
Позвоните нам
Наиболее просматриваемые