Вы можете связаться с нами через колл-центр по любым вопросам.

Двойной Дом для Беженцев

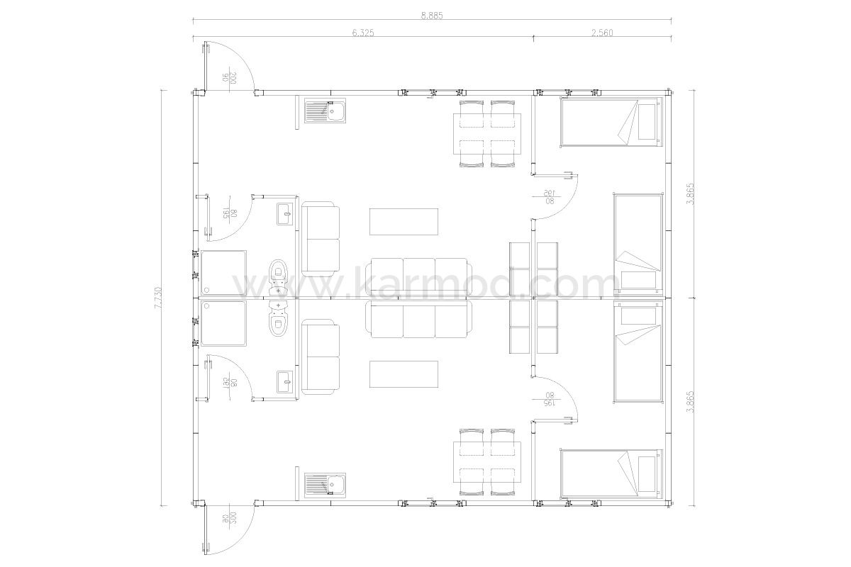
  • Спальня 9.145 m² (x2)
  • Ванная комната 3,376 m² (x2)
  • Living Room 16.311 m² (x2)
  • Зал 3.339 m² (x2)
  • Lenght 8.885 m
  • ширина 7.730 m
  • Высота 2.500 m
  • M2 69 m²
В настоящее время 16 гости просматривают этот продукт
Позвоните нам

Доступное и Высококачественное: Двойное Решение для Проживания Беженцев от Кармод

Кармод предлагает доступное и высококачественное решение для нужд беженцев и чрезвычайного проживания с Двойным Семейным Префабрикованным Домом для Беженцев площадью 69 м². Эти инновационные префабрикованные дома обеспечивают быстрое и безопасное жилье, при этом сохраняя стоимостную эффективность на первом месте. Эта модель Кармод оснащена высокоизоляционными характеристиками и энергоэффективностью, предлагая пользователям комфортабельное проживание в любое время года. Это двойное жилищное решение идеально подходит для государственных учреждений, благотворительных организаций и частных лиц, ищущих экономичные решения, и выделяется качеством Кармод.

Быстрая Установка, Длительный Комфорт: Двойные Дома для Беженцев от Кармод

Двойное Семейное Префабрикованное Решение для Проживания Беженцев от Кармод на площади 69 м² предлагает быстрый и практичный процесс монтажа. Эти модульные конструкции выделяются своей способностью к быстрой установке, что имеет критическое значение для удовлетворения срочных потребностей в жилье. Кармод с его инновационными методами производства и опытными монтажными командами обеспечивает быстрое воплощение проектов в жизнь. Как надежный бренд с референциями в 135 странах, Кармод создает глобальную сеть доверия и удовлетворенности. Двойные дома для беженцев представляют собой надежный и комфортабельный выбор для всех, кто ищет решения для постоянного и временного проживания.

Гарантия Кармод для Двойного Проживания Беженцев: Марка, Предпочитаемая во Всем Мире

С Двойным Семейным Префабрикованным Домом для Беженцев Кармод несет ответственность за то, чтобы быть маркой, предпочитаемой во всем мире. Эти префабрикованные дома площадью 69 м² разработаны для удовлетворения потребностей и ожиданий пользователей, стремясь предложить здоровое и спокойное жилище с использованием высококачественных материалов и современного дизайна. Кармод является надежным партнером для государственных учреждений, благотворительных организаций и частных лиц, ищущих решения для чрезвычайного проживания. С референциями в 135 странах, Кармод лидирует в отрасли по качеству, скорости и удовлетворенности клиентов.

Наиболее просматриваемые