Ви можете зв'язатися з нами за будь-яких питань через кол-центр

Маленька пральня

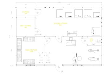
  • Lenght 11.395 m
  • ширина 7.730 m
  • Висота 2.500 m
  • M2 88 m²
Зараз 43 переглядають цей продукт
Call us

Висока Ефективність за Розумною Ціною: Мала Модульна Пральня від Кармод

Кармод пропонує малу модульну пральню площею 88 м² як ефективне та доступне за ціною рішення для ваших потреб у пранні, забезпечуючи економію простору та швидке обслуговування в будь-якому середовищі. Ця префабрикована пральня максимізує використання малого простору, забезпечуючи високу ефективність. Обладнана високими ізоляційними характеристиками, ця конструкція максимізує енергозбереження та надає комфортне робоче середовище для користувачів. Кармод, використовуючи якісні матеріали та вищий рівень майстерності, ефективно задовольняє ваші потреби у пральні, підвищуючи оперативну ефективність вашого бізнесу.

Швидке Встановлення та Довговічне Використання: Перевага Малої Пральні від Кармод

Мала модульна пральня площею 88 м² від Кармод пропонує практичні рішення для ваших потреб у пральні завдяки процесам швидкого виробництва та монтажу. Ця модульна пральня легко встановлюється навіть у вузьких просторах і може бути швидко введена в експлуатацію. Відома своєю надійністю, компанія Кармод має референції у 135 країнах і займає лідируючу позицію на глобальному ринку. Ця префабрикована пральня пропонує довговічне використання та міцність, адаптуючись до постійно змінюваних потреб вашого бізнесу та забезпечуючи стале рішення.

Ефективні Рішення для Пральні з Високою Якістю та Комфортом: Структура Малої Пральні від Кармод

Мала модульна пральня від Кармод площею 88 м² з широким простором та сучасним дизайном ідеально підходить для будь-якого підприємства чи установи, надаючи ідеальне місце для прання. Обладнана матеріалами високої якості та естетичним дизайном, ця модульна пральня забезпечує комфортне та ефективне робоче середовище для користувачів. Як найбільш вибраний бренд, Кармод підсилює якість та імідж ваших проектів пральні. Це префабриковане рішення для пральні є відмінним стартовим пунктом для задоволення потреб у пранні підприємств та установ, підвищуючи оперативну ефективність.

Найбільше переглянуті