Ви можете зв'язатися з нами за будь-яких питань через кол-центр

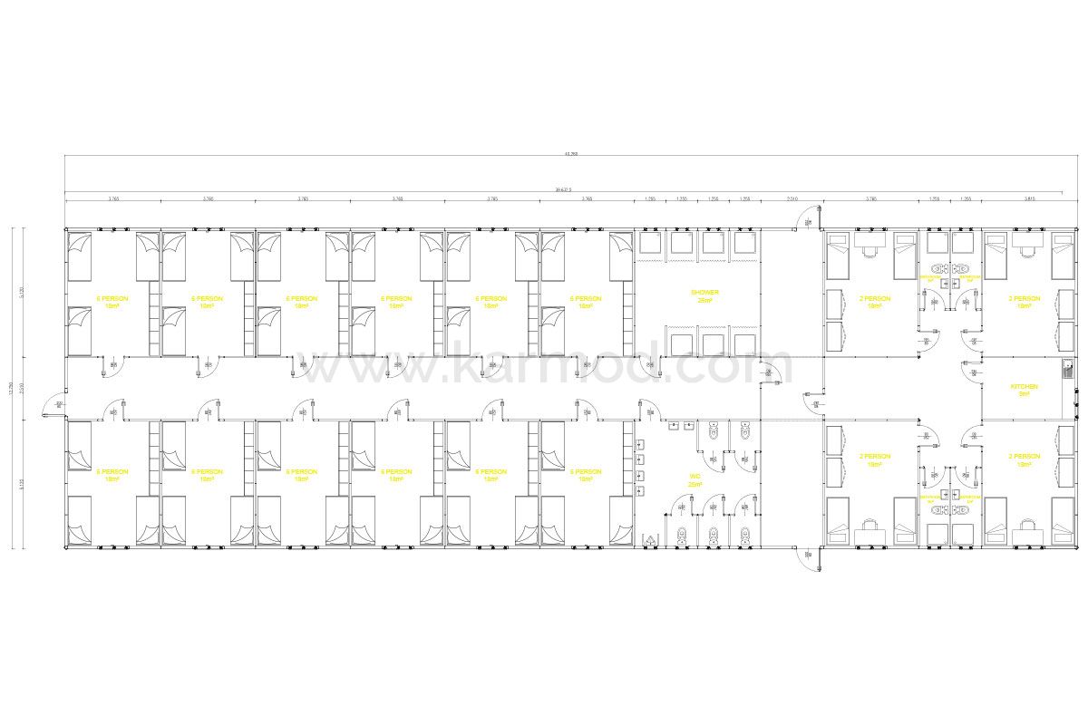
Гуртожиток для 80 інженерів

  • Ємність 80
  • Lenght 39.632,5 m
  • ширина 12.750 m
  • Висота 2.500 m
  • M2 513 m²
Зараз 23 переглядають цей продукт
Call us

Інженерні Робочі Простори Піднімаються на Новий Рівень з Кармод

Гуртожиток Кармод на 513 м² для 80 осіб підвищує стандарти комфорту та ефективності, які вимагаються сучасними інженерними проектами, до нового рівня. Цей просторий та повітряний гуртожиток пропонує приватні житлові простори, загальні робочі кімнати та зони відпочинку, продумано розроблені для кожного інженера. Інноваційний дизайн від Кармод, побудований з використанням стійких матеріалів, акцентує увагу на енергоефективності та екологічних характеристиках. Це не тільки забезпечує довгострокову економію витрат для вашого бізнесу, але й підвищує мотивацію та продуктивність ваших інженерів. Цей високоякісний гуртожиток під брендом Кармод дозволяє вам зробити різницю у ваших проектах.

Зустрічайте Вищий Комфорт та Ефективність: Гуртожиток для 80 Інженерів від Кармод

Гуртожиток Кармод для 80 осіб білих комірців пропонує преміальний досвід розміщення, спрямований на інженерів та керівний склад. Простір 513 м² обладнано високошвидкісним інтернетом, ергономічними меблями та просторими робочими зонами. У цьому гуртожитку професіонали можуть продовжувати працювати над проектами навіть поза робочим часом і насолоджуватися високоякісним відпочинком та соціальними просторами. Кармод пропонує не лише розміщення, а й центр продуктивності та мотивації з цією моделлю. Підвищте лояльність та задоволення від роботи ваших інженерів та керівників, надаючи їм ці можливості у ваших проектах.

Нова Ера в Індустрії з Якістю Кармод: Гуртожиток для 80 Інженерів

Кармод відкриває нову еру в індустрії, поєднуючи комфорт та ефективність для працівників білих комірців зі своїм гуртожитком для 80 інженерів. Площа 513 м², побудована з модульним та інноваційним підходом до дизайну, пропонує відмінне рішення для довгострокових проектів. Легкість встановлення та потенціал для розширення роблять його ідеальним для динамічних та мінливих проектів. Крім того, гуртожиток Кармод економічно, ефективно та гнучко вирішує одну з найбільших викликів бізнесу: потребу в якісному розміщенні. Відкрийте ключ до сталого успіху в бізнесі з якістю Кармод.

Найбільше переглянуті