Ви можете зв'язатися з нами за будь-яких питань через кол-центр

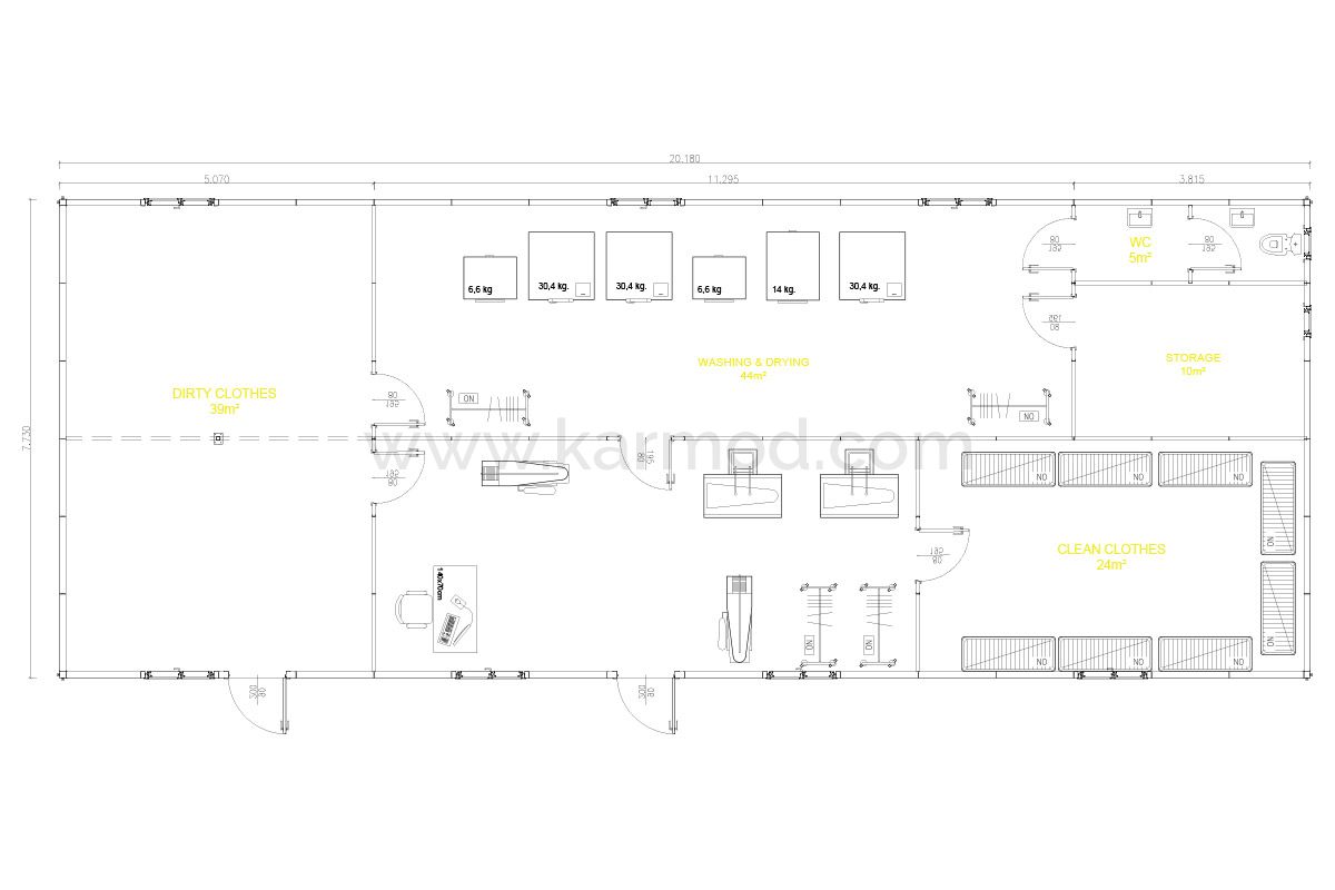
Велика пральня

  • Довжина 20.180 m
  • ширина 7.730 m
  • Висота 2.500 m
  • M2 156 m²
Зараз 24 переглядають цей продукт
Call us

Ефективність та Доступність Разом: Велика Модульна Пральня від Кармод

Кармод пропонує ефективні та доступні рішення для потреб у великих обсягах прання з Великою Модульною Пральнею площею 156 м², яка ідеально підходить для великих підприємств, лікарень та готелів. Ця простора пральня привертає увагу своєю зручністю у використанні та безперебійною роботою, максимізуючи економію енергії завдяки високим ізоляційним характеристикам. Кармод задовольняє ваші потреби у пральні за допомогою використання якісних матеріалів та вищої майстерності, підвищуючи операційну ефективність вашого бізнесу.

Швидке Встановлення, Довготривале Використання: Перевага Великої Пральні від Кармод

Велика Модульна Пральня площею 156 м² від Кармод пропонує практичні рішення для ваших потреб у великих масштабах завдяки швидкому виробництву та процесам монтажу. Ця модульна пральня легко встановлюється та швидко стає готовою до використання, пропонуючи довготривале використання завдяки своїй міцній конструкції. Відома як надійна компанія, Кармод має лідерські позиції на глобальному ринку з референсами у 135 країнах. Ця префабрикована пральня полегшує ваші операції з прання великого обсягу, пропонуючи стійке рішення.

Якість та Зручність У Використанні: Ідеальні Рішення для Пральні від Кармод

Велика Модульна Пральня від Кармод з просторим залом площею 156 м² та сучасним дизайном пропонує ідеальне місце для прання для будь-якого великого підприємства чи установи. Обладнана високоякісними матеріалами та дизайном, орієнтованим на користувача, ця модульна пральня забезпечує комфортне та ефективне робоче середовище для операторів. Як найбільш обрана марка, Кармод підсилює якість та імідж ваших проектів пральні. Це префабриковане рішення є чудовим стартом для задоволення потреб у пранні підприємств та установ, підвищуючи операційну ефективність.

Найбільше переглянуті