Ви можете зв'язатися з нами за будь-яких питань через кол-центр

Велика зона відпочинку

  • 636 m²
Зараз 40 переглядають цей продукт
Call us

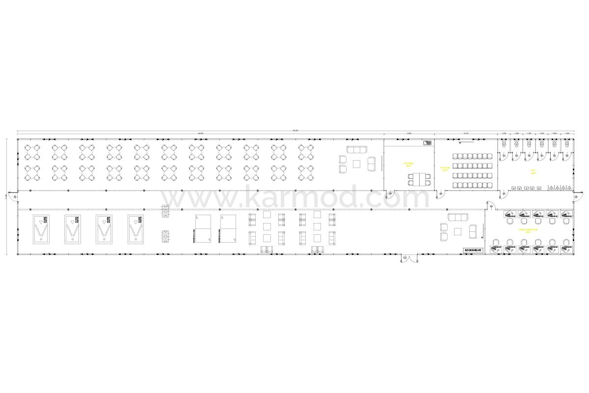
Доступні Розширювані Зони Відпочинку: Велике Рішення від Кармод

Кармод пропонує доступні та розширювані зони відпочинку з Великим Префабрикованим Будинком Рекреації площею 636 м², ідеально підходить для спорту, заходів та громадських активностей. Цей просторий будинок рекреації може бути адаптований до будь-яких потреб завдяки налаштовуваним планам. Обладнаний високими ізоляційними характеристиками, ця споруда забезпечує економію енергії, пропонуючи комфортне середовище для відпочинку та заходів. Кармод, використовуючи якісні матеріали та вищу майстерність, надає спільнотам можливість економічно та ефективно розширювати їхні зони рекреації.

Швидкий Монтаж, Довготривале Використання: Перевага Великого Будинку Рекреації від Кармод

Великий Префабрикований Будинок Рекреації площею 636 м² від Кармод пропонує практичні рішення для потреб спільнот у рекреаційних та західних просторах завдяки швидкому виробництву та процесам монтажу. Цей просторий будинок рекреації легко встановлюється та швидко стає готовим до використання, дозволяючи спільнотам швидко отримати доступ до рекреаційних активностей великого масштабу. Відома як надійна компанія, Кармод має лідируючі позиції на глобальному ринку з референсами у 135 країнах. Цей префабрикований будинок рекреації виділяється своєю міцністю та довготривалим використанням, пропонуючи стійке рішення.

Якісні Матеріали, Гнучкий Дизайн: Налаштовувані Рішення для Рекреації від Кармод

Великий Префабрикований Будинок Рекреації від Кармод з просторим залом площею 636 м² та налаштовуваним дизайном пропонує ідеальний простір для спорту, заходів та громадських активностей. Обладнані високоякісними матеріалами та дизайном, орієнтованим на користувача, ці будинки рекреації забезпечують комфортне та приємне середовище для користувачів. Як найбільш обрана марка, Кармод підсилює якість та імідж ваших проектів рекреаційних та місцевих будинків. Це префабриковане рішення є чудовим стартом для задоволення потреб спільнот у рекреації, перевищуючи очікування з гнучкими можливостями використання.

Найбільше переглянуті