Ви можете зв'язатися з нами за будь-яких питань через кол-центр

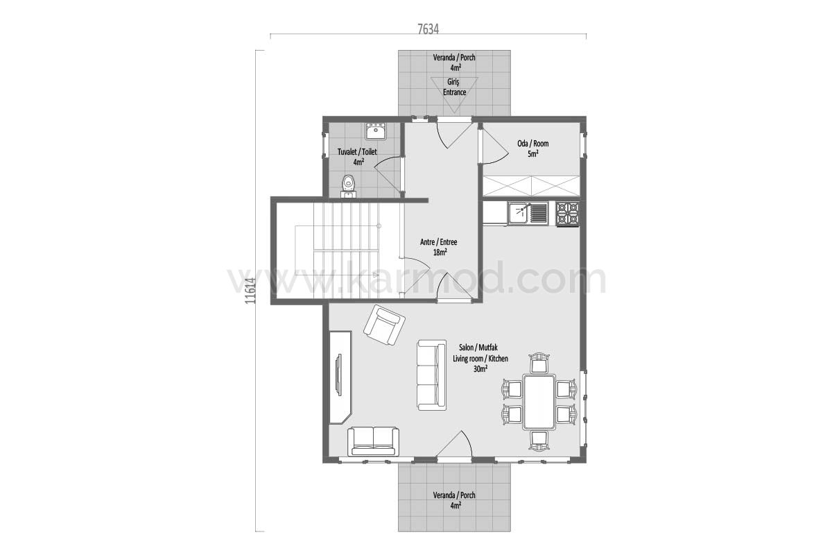
Дачні будинки 126 м²

  • Салон 30 m²
  • Вхід 18 m²
  • Спальня 5 m²
  • EntrancePatio 8 m²
  • Wc 4 m²
  • Ванна кімната 6 m²
  • Балкон 4 m²
  • Спальня 16 m²
  • Спальня 10 m²
  • Спальня 12 m²
Зараз 59 переглядають цей продукт
Call us

Питання що часто задаються

Найбільше переглянуті