Вы можете связаться с нами через колл-центр по любым вопросам.

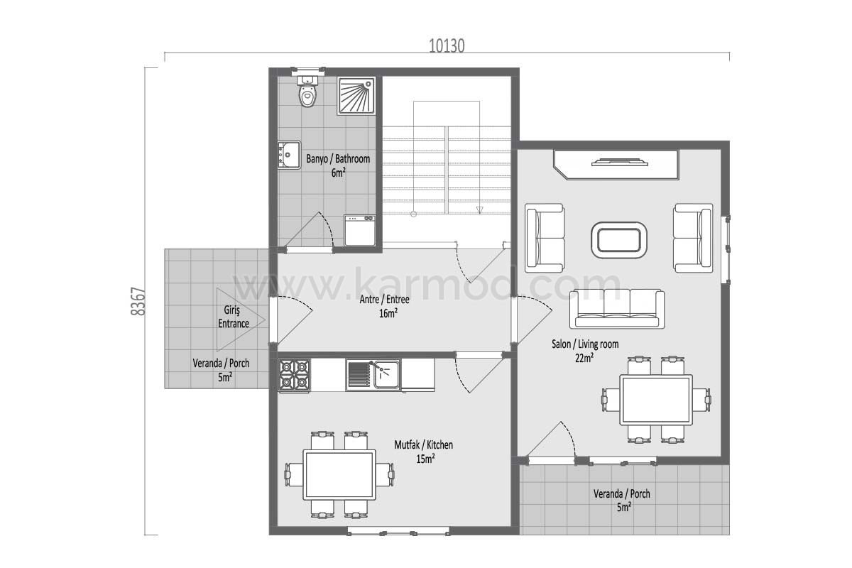
Проект сборных домов 136 м²

  • салон 22 m²
  • Ванная комната 6 m²
  • Кухня 15 m²
  • Вход 16 m²
  • Патио 5 m²
  • Патио 5 m²
  • Ванная комната 5 m²
  • Ванная комната 4 m²
  • Вход 17 m²
  • Балкон 5 m²
  • Спальня 14 m²
  • Спальня 12 m²
  • Спальня 10 m²
В настоящее время 95 гости просматривают этот продукт
Позвоните нам

Часто задаваемые вопросы

Наиболее просматриваемые