Вы можете связаться с нами через колл-центр по любым вопросам.

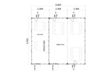
41 м² Обеденный зал Контейнер

  • ширина 6.8 m
  • Lenght 5.9 m
  • Высота 2.6 m
  • M2 41 m²
  • Емкость 18
В настоящее время 61 гости просматривают этот продукт
Позвоните нам

41 м² Контейнер-Столовая для Экономичных и Удобных Решений в Питании

В современном мире для учреждений и организаций очень важно найти экономичные, но в то же время удобные и практичные решения в области питания. Контейнер-столовая от Karmod площадью 41 м², рассчитанная на 26 человек, является идеальным вариантом для различных сфер, от рабочих мест до учебных заведений. Его переносная и удобная структура выделяется, обеспечивая легкость и быстроту установки, тем самым экономя время и средства. Бюджетно-дружелюбный вариант, этот продукт отражает приверженность Karmod качеству и надежности без компромиссов в стандартах производства.

Преимущество Быстрой Сборки Контейнера-Столовой 41 м²

Время является самым ценным ресурсом, особенно в проектах строительства и установки. Контейнер-столовая от Karmod площадью 41 м² выделяется своим преимуществом быстрой сборки. Этот контейнер предлагает быстрое решение для бизнеса, его можно собрать намного быстрее по сравнению со стандартными методами строительства. Благодаря опытным монтажным командам Karmod, ваши потребности в питании удовлетворяются немедленно. Это делает Karmod одним из наиболее предпочтительных брендов в отрасли за "быстрое производство и сборку". Karmod доказал свою надежность и качество на глобальном уровне с референциями из 135 стран.

Современные Решения для Контейнера-Столовой с Качеством от Karmod

Для тех, кто ищет качественные и долговечные решения в области питания, контейнер-столовая от Karmod площадью 41 м² является идеальным выбором. Karmod использует высокоизолирующие материалы, предлагая комфортный опыт питания на протяжении всего года. Эти контейнеры обеспечивают прохладную среду в теплые летние месяцы и помогают экономить на отоплении зимой. Бренд Karmod известен как надежная компания, которая приоритизирует удовлетворенность клиентов и поддерживает свою продукцию. Контейнер-столовая 41 м² представляет собой доступное, высококачественное и современное решение, повышающее комфорт сотрудников.

Наиболее просматриваемые