Вы можете связаться с нами через колл-центр по любым вопросам.

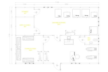
Маленькая прачечная

  • Lenght 11.395 m
  • ширина 7.730 m
  • Высота 2.500 m
  • M2 88 m²
В настоящее время 39 гости просматривают этот продукт
Позвоните нам

Доступное Решение с Высокой Эффективностью: Малая Модульная Прачечная от Кармод

Кармод предлагает доступное и эффективное решение для ваших потребностей в стирке с Малой Модульной Прачечной площадью 88 м², которая обеспечивает экономию места и быстрое обслуживание в любой среде. Эта префабрикованная прачечная максимально использует малые пространства, обеспечивая высокую эффективность. Оснащенная высокими изоляционными характеристиками для энергоэффективности, эта конструкция максимизирует экономию энергии и предоставляет удобное рабочее пространство для пользователей. Кармод, используя качественные материалы и высокое мастерство, экономично и эффективно удовлетворяет ваши потребности в прачечной, повышая операционную эффективность вашего бизнеса.

Быстрая Установка и Долговечное Использование: Преимущества Малой Прачечной от Кармод

Малая Модульная Прачечная от Кармод площадью 88 м² предлагает практичные решения для ваших потребностей в прачечной благодаря процессам быстрого производства и монтажа. Эта модульная прачечная может быть легко установлена даже в ограниченных пространствах и быстро подготовлена к использованию. Как надежная компания с референциями в 135 странах, Кармод подтверждает свое лидерство на глобальном рынке. Эта префабрикованная прачечная предлагает долговечное использование и прочность, адаптируясь к постоянно меняющимся потребностям вашего бизнеса и предоставляя устойчивое решение.

Эффективные Решения для Прачечной с Качеством и Комфортом: Малая Прачечная от Кармод

Малая Модульная Прачечная от Кармод площадью 88 м² предлагает идеальное пространство для стирки для любого типа предприятия и учреждения благодаря своему широкому пространству и современному дизайну. Эта модульная прачечная, оснащенная высококачественными материалами и эстетическим подходом к дизайну, предоставляет удобное и эффективное рабочее место для пользователей. Как самый предпочтительный бренд, Кармод усиливает качество и имидж ваших проектов прачечной. Это префабрикованное решение предлагает отличную стартовую точку для удовлетворения потребностей в стирке компаний и учреждений, повышая операционную эффективность.

Наиболее просматриваемые