می توانید برای تمام درخواست هایی که دارید از طریق دفاتر فروش و مراکز تماس با ما ارتباط برقرار کنید

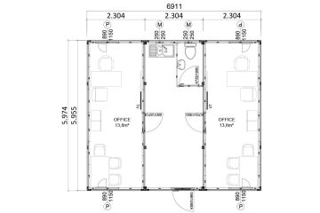
کانتینر اداری بدون سقف مخصوص دو نفر

  • طول 6.9 m
  • عرض 5.9 m
  • ارتفاع 2.6 m
  • M2 41 m²
  • Capacity 2
در حال حاضر مهمانان 84 در حال مشاهده این محصول هستند
تماس با ما

41 مترمربع دفتر کانتینری بدون سقف: چهره‌ی نوآورانه‌ی فضای کاری مدرن

کارمود با ارائه‌ی دفتر کانتینری بدون سقف 41 مترمربعی، فضای کاری عملی و نوآورانه‌ای را برای برآورده ساختن نیازهای دنیای کسب و کار مدرن فراهم می‌آورد. این دفتر کانتینری دو نفره، با طراحی مدرن و ساختار کاربردی خود، به راحتی با هر نوع محیط کاری سازگار است. قابلیت حمل آن، استفاده در مکان‌های مختلف را آسان می‌کند. کارمود با این راه‌حل مقرون به صرفه، هدف ایجاد فضاهای دفتری با کیفیت و قابل دسترس را دنبال می‌کند تا کمک کند کارهایتان را به شیوه‌ای انعطاف‌پذیر و مؤثر پیش ببرید.

نصب سریع، فوراً کار خود را آغاز کنید: 41 مترمربع دفتر کانتینری بدون سقف

دفتر کانتینری بدون سقف 41 مترمربعی کارمود با نصب سریع و آسان خود برجسته است. این امر به کسب و کارها و کارآفرینان اجازه می‌دهد که دفاتر خود را با حداقل اتلاف وقت، بلافاصله به کار گیرند. تیم‌های نصب مجرب کارمود با کارایی بالا، دفتر کانتینری شما را در مدت کوتاهی نصب می‌کنند. این ویژگی نصب سریع، کارمود را به یکی از برندهای مورد ترجیح در زمینه "تولید و نصب سریع" در صنعت تبدیل می‌کند. کارمود به عنوان یک رهبر جهانی با ارائه راه‌حل‌های قابل اعتماد و عملی، با ارجاع به 135 کشور، شناخته شده است.

فضای کاری ایده‌آل طراحی شده با کیفیت کارمود: 41 مترمربع دفتر کانتینری بدون سقف

کارمود با دفتر کانتینری بدون سقف 41 مترمربعی خود، کیفیت و دوام را در اولویت قرار می‌دهد. این دفتر کانتینری، با استفاده از مواد با کیفیت بالا و کاردانی عالی ساخته شده، محیط کاری ماندگار و مقاومی را فراهم می‌آورد. ویژگی‌های عالی عایق‌بندی، بازده انرژی را تضمین می‌کند و در هر فصلی فضای کاری راحتی را به کاربران ارائه می‌دهد. کارمود، به عنوان یک شرکت "با کیفیت بالا و قابل اعتماد" در صنعت معروف است و با ارجاع به 135 کشور، کیفیت و رضایت مشتری را در سطح جهانی اثبات می‌کند.

پربیننده ترین